在日常的设计工作中,管线的设计占了极大的比重,为了提高工作效率、规范作图风格,浩宇设计公司于近期组织了管立得软件的课程培训,提高员工的综合能力。


管立得是由鸿业科技开发的管线设计产品,它有诸多的亮点和特殊功能。管立得软件包括给水管网设计、排水管网设计、燃气管网设计、市政电力管网设计力、热力管网设计,多专业管线可以在管立得中协同设计,进行碰撞检查,各专业管线设计模块可以单独安装,也可以任意组合安装。
管立得具备进行地形图识别和三维曲面展示编辑、管线平面智能设计、竖向可视化设计、自动标注、自动表格绘制和自动出图。平面、纵断、标注、表格联动更新等功能。能够满足规划设计、初步设计、施工图设计等不同设计阶段的需要。
在浩宇设计公司组织的管立得软件培训中,主要从以下四个方面进行:1、基础设置;2条件图准备;3管线设计;4出图。在介绍了管立得基本操作和设置后,通过对野外地形的管道设计实战,将从拿到地形图至设计完后出图的过程进行完整展示,使大家对用管立得的使用流程有了整体认识。
目前,管立得软件的使用被越来越多的应用到我们的实际工作中,例如在对公安县青吉工业园水厂的设计中,原水管线和厂区管线就是使用的管立得来进行综合设计。该水厂原水输水管道长度约5公里左右,从取水泵船上取水后,翻越长江大堤,沿渠道敷设至净水厂区。途中需经过渠道、水塘、道路及桥梁等地。使用管立得软件,在管道平面走向确定后,通过软件绘制管道纵断面图,并对纵断面数据进行调整,使之在满足覆土要求的前提下,尽量优化设计方案,降低工程量。使用管立得绘制纵断面图最大的好处是不论在平面还是断面对管道进行调整,所有数据都会联动调整,避免了人为因素造成的误差。


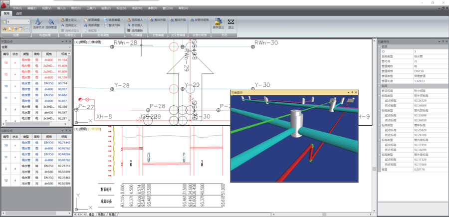
公安县水厂厂区管线的绘制中也用到了管立得软件,通过管立得进行的给水管线、雨水管线和污水管线的综合设计,能够动态直观的进行管道竖向碰撞分析调整,自动绘制管道横断面图和交叉点垂距表。在系统中通过综合碰撞检查发现冲突部位,可以直观高效的排查设计问题并对其进行优化,减少设计完成后需要调整的工作量。提前将符合规范要求的各类管道交叉的垂直距离进行定义,在设计过程中,便可通过控制管道坡度或局部升降来避免不同管道间的碰撞及间距要求。




在石首城区水厂与周家剅水厂取水口整合工程中,一段长约1.3公里的原水管道,在将地形处理好后,使用管立得进行管道设计,仅用半天就可将平面及纵断面图全部完成。管立得的使用不仅提高了管线绘制的效率,也能很好的统一出图的风格,软件自带的裁图工具可以通过不同方式的裁图将图面快速且合理的整理出来。
管立得还支持各类专业的管道计算,如雨水计算、污水计算、管网平差计算、管道土方计算等。在进行给水规划时,可以利用管网平差程序省去繁琐的计算过程,通过分配节点流量和管径,使设计的给水管道能够保证最不利用水点及消防用水等需求,并相互校核,确保数据的科学性。在数据的支持下进行经济技术分析与比较,最后确定最佳方案。


软件虽好,但是其使用主体还是设计人员,因此,不断提升个人的综合能力才是在行业内长足发展的重要基石。熟知各类项目中设计所需满足的规范和标准要求,辅以专业的设计软件,同时最大程度上的避免人为因素出现的不必要误差,可以极大的提高工作效率。浩宇公司也在积极响应集团号召,在集团方针的指导下,通过定期开展培训,提升员工的综合素质,在遇到各类工作难题时能快速有效的制定解决方案,真正将设计成果良好的运用到实际工程中。
(通讯员:肖王金)
